
STANDARD HOUSE

ブランピュール二子新地 全2棟川崎市高津区北見方2丁目 全2棟
多摩川河川敷まで徒歩4分。自然も多く、平坦で生活しやすいエリアです。
室内の壁に自然素材の漆喰をふんだんに使用した、女性に優しい自然素材の家。
各棟個性溢れるプランニングが魅力です。
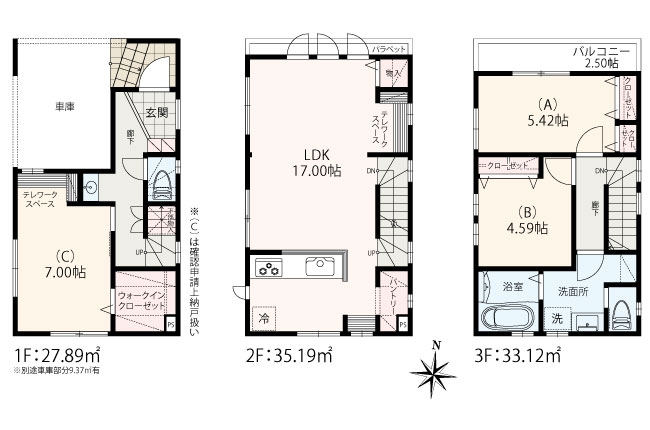
シューズクローゼット、1階小洗面、テレワークスペース、ウォークインクローゼット
パントリー、ランドリーラックなどを設置した建売分譲住宅です。
【所在地】 川崎市高津区北見方2丁目
【交通】 東急田園都市線「二子新地」駅徒歩18分
【学区】 東高津小学校・東高津中学校
【敷地面積】 2号棟:60.59㎡(18.32坪)
【土地権利】 所有権
【地目】 宅地
【都市計画】 市街化区域
【用途地域】 第1種中高層住居専用地域
【建ぺい率】 60%
【容積率】 200%
【道路】 北4m私道
【建物面積】 96.20㎡(29.10坪)別途車庫部分9.37㎡有
【建物構造】 木造スレート葺き3階建
【設備】 東京電力・都市ガス・公営水道・本下水
【建築確認番号】2号棟:第KBI-YKH25-10-0484号
【現況】 建築中
【販売棟数】 全2棟(今回販売1棟)
【販売価格】 2号棟:5,280万円(税込)
【完成】 2025年11月下旬
【引渡】 完成以降
【備考】 道路持分有:216㎡の内19/432
別途セットバックあり:2号棟:0.85㎡